Photo: Platen

Photo: Platen

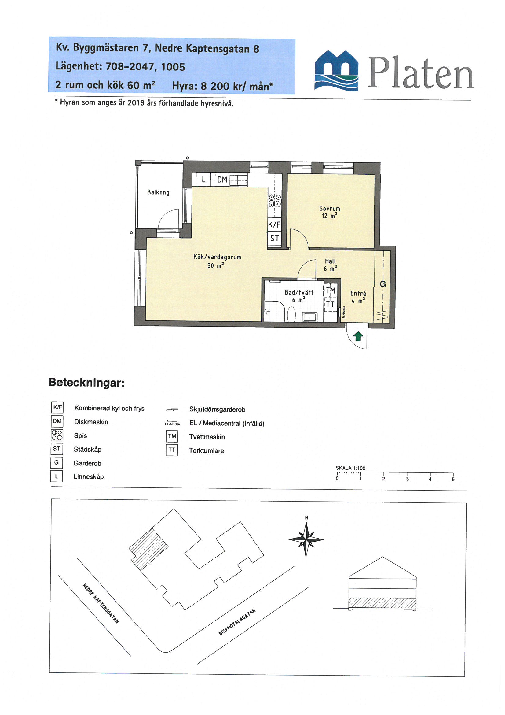
Nedre Kaptensgatan 8
Motala, Gamla stan
60 kvm
2 rok
Floor 1
Balkong Inglasad
El Ingår ej
Varmvatten Ingår
Vatten Ingår
Värme Ingår
Â
8,790 kr
2026-03-01Until further notice
You apply for the apartment on Platens website
All information about the apartment comes from the landlord when the property became available (12/13/2025)
