Photo: Ljusdalshem AB



Photo: Ljusdalshem AB

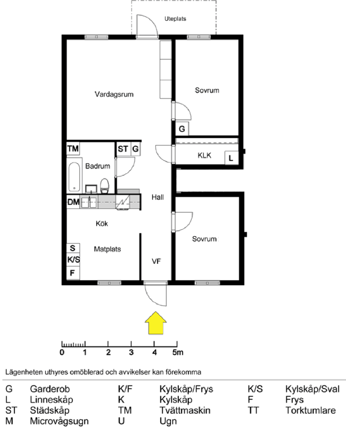
Ämbarbovägen 28 B
Ljusdal, Ljusdal östra
78 kvm
3 rok
Floor 1
6,373 kr
2026-01-06Until further notice
You apply for the apartment on Ljusdalshem ABs website
All information about the apartment comes from the landlord when the property became available (10/21/2025)
