Photo: Platen



Photo: Platen

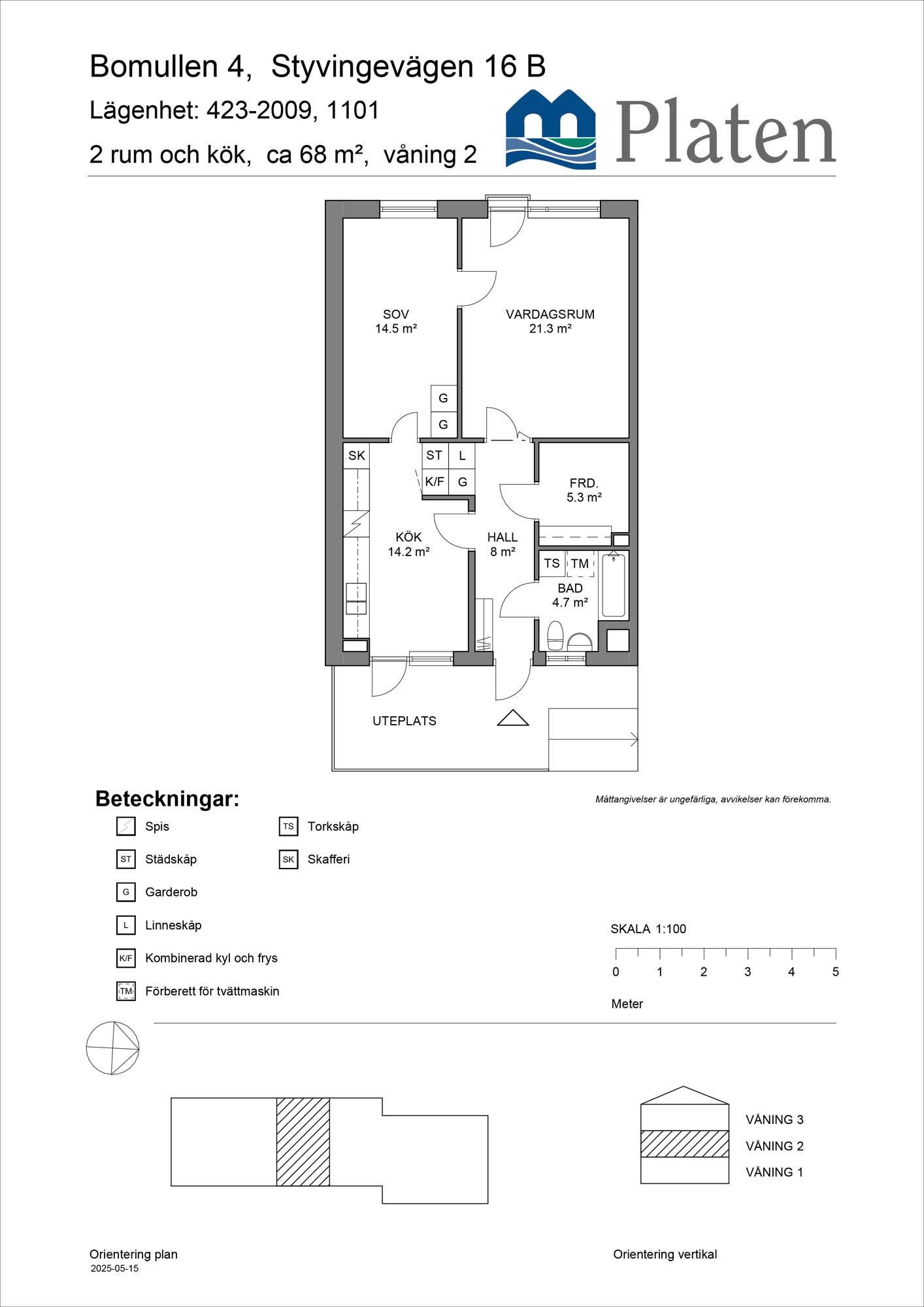
Styvingevägen 16 B
Motala, Ekön
68 kvm
2 rok
Floor 2
Balkong
El Ingår ej
Hiss Saknas
Uteplats Nej
Varmvatten Ingår
Vatten Ingår
Värme Ingår
6,683 kr
NowUntil further notice
You apply for the apartment on Platens website
All information about the apartment comes from the landlord when the property became available (10/4/2025)
