Photo: Höganäs Hem

Photo: Höganäs Hem

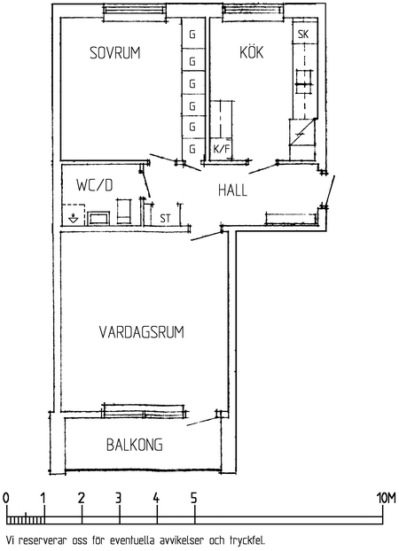
Långarödsvägen 54 C
Höganäs, Kolonien
58 kvm
2 rok
Floor 3
Badrum med dusch
Balkong
Bredbands leverantör Z-market
Genomgående lgh
Hiss Nej
Hushållsel ingår ej
TV leverantör Telia Lagom 2022-01-01 t om 2026-12-31
Lägenheten består av två rum och kök, belägen på tredje våningen i huset. Vardagsrummet är rymligt och har utgång till en balkong. Köket är separat har gott om förvaringsskåp. Sovrummet rymmer en större säng och många garderober längs ena väggen. Bo på ett trevligt läge med närhet till kommunikationer, grönområden och vardagsservice, här finns allt för ett bekvämt och harmoniskt boende.
6,510 kr
NowUntil further notice
You apply for the apartment on Höganäs Hems website
All information about the apartment comes from the landlord when the property became available (11/19/2025)
