Foto: Platen

Foto: Platen

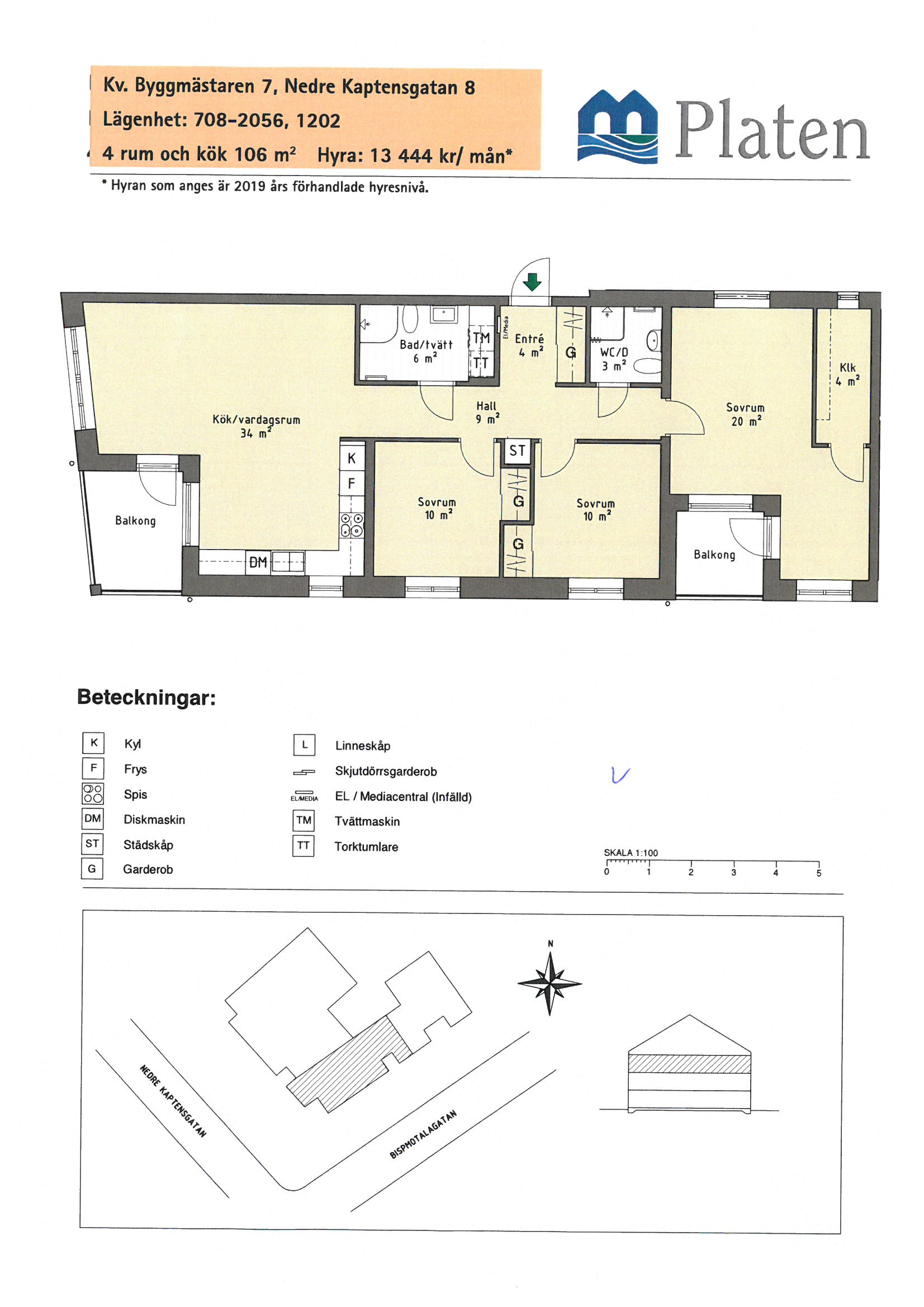
Nedre Kaptensgatan 8
Motala, Gamla stan
106 kvm
4 rok
Våning 3
Balkong Inglasad
El Ingår ej
Hiss
Varmvatten Ingår
Vatten Ingår
Värme Ingår
14 475 kr
NuTillsvidare
Du söker bostaden på Platens hemsida
All information om bostaden kommer från hyresvärden då objektet blev tillgängligt (2025-10-14)
