Foto: Platen



Foto: Platen

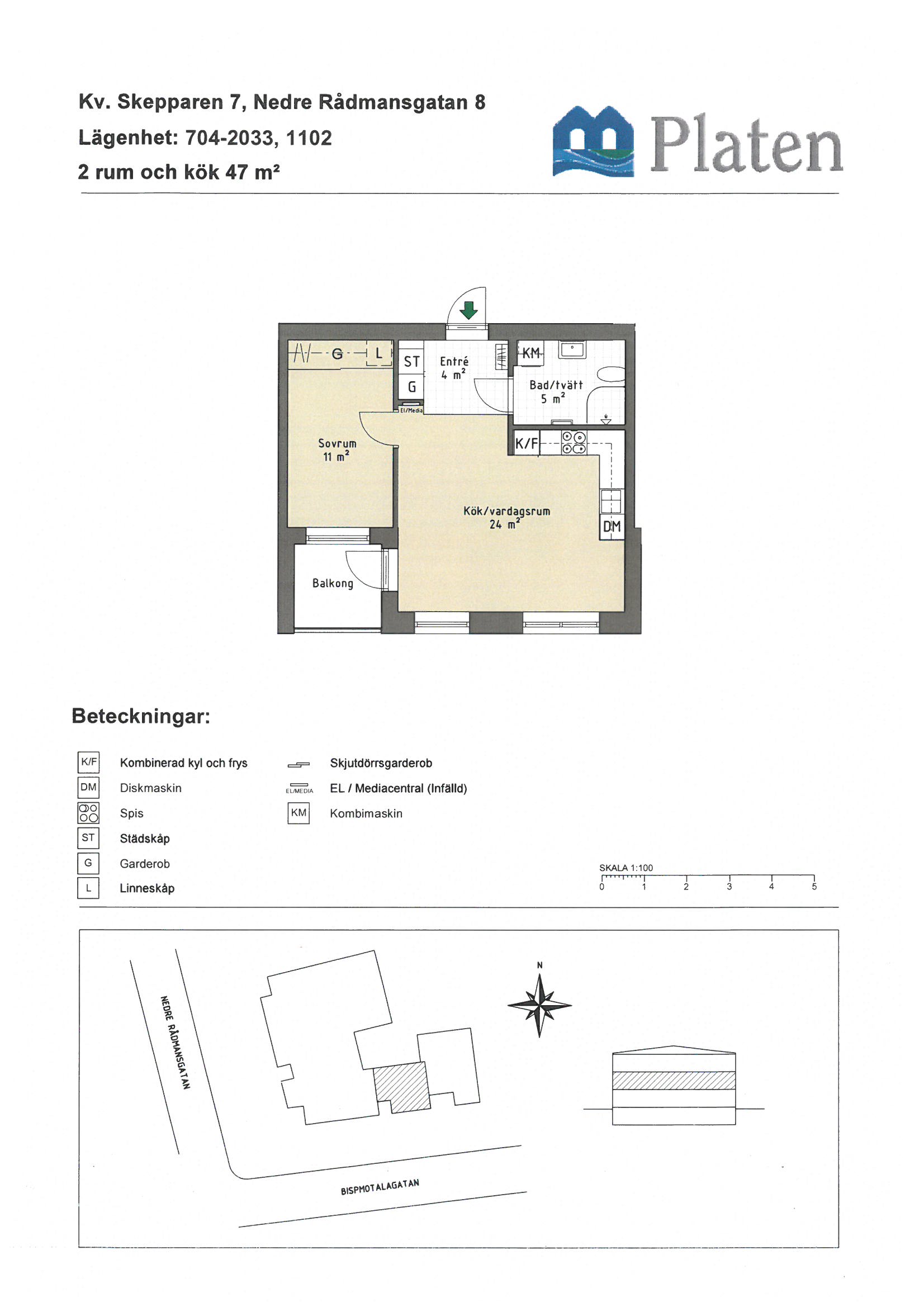
Nedre Rådmansgatan 8
Motala, Gamla stan
47 kvm
2 rok
Våning 2
Balkong Inglasad
El Ingår ej
Hiss
Varmvatten Ingår
Vatten Ingår
Värme Ingår
7 002 kr
2026-02-01Tillsvidare
Du söker bostaden på Platens hemsida
All information om bostaden kommer från hyresvärden då objektet blev tillgängligt (2025-12-12)
