Foto: Höganäs Hem



Foto: Höganäs Hem

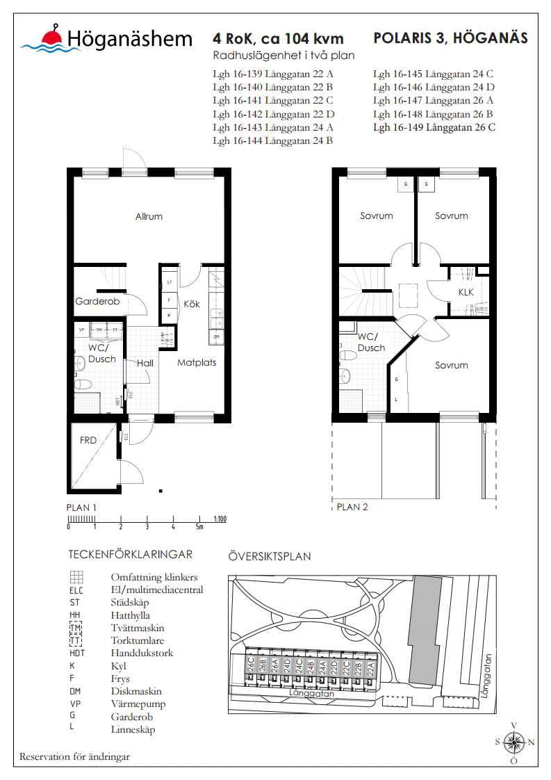
Långgatan 22 B
Höganäs, Polaris
104 kvm
4 rok
Våning 0
Badrum med dusch
Bredbands leverantör Z-market
Diskmaskin
Duschdörr/duschvägg
Genomgående lgh
Gäst-wc m dusch
Hiss Nej
Hushållsel ingår ej
Individuell mätning
Kallhyra
Radhus
Torktumlare
TV leverantör Telia Lagom 2022-01-01 t om 2026-12-31
Tvättmaskin
Uteplats
Radhuset är i två plan med en lägenhetsyta på ca 104 m2. Till lägenheten finns ett eget kallförråd samt en uteplats i västerläge. I direkt anslutning till lägenheten finns ett grönområde med lekplats. Området på Polaris är eftertraktat för sitt utmärkta läge med närhet till centrum och kommunikationer.
14 148 kr
2026-04-01Tillsvidare
Du söker bostaden på Höganäs Hems hemsida
All information om bostaden kommer från hyresvärden då objektet blev tillgängligt (2025-12-12)
